Floor Plan Redesign & Digital Renovation Planning
Optimize your Apartment Layout before you renovate
Old apartments often have more potential than they show. We help you see what's possible — calmly, clearly, professionally — before construction begins. With 25 years of experience, we do floor plan redesign that improves flow, function, and everyday life. Fast, affordable, 100% online.
- Architect-designed layouts – from €199, delivered in 3 days
- Optimize every cm – improve flow, create storage, add a bedroom, modernize kitchen and baths
- Trusted by – apartment buyers and renovators across Europe
Want to see your apartment’s possibilities? Get a free expert evaluation of your floor plan. Delivered in 48 hours. No obligation.
Perfect For:
- Apartment buyers planning renovation – understand the layout’s potential before you commit
- Apartment owners ready to renovate – avoid mistakes, get the floor plan right before construction starts
- Property seekers comparing options – see what’s truly possible in each space

“The new layout creates a much better flow, eliminates unnecessary dead space, and greatly improves storage, making the house feel more livable and contemporary.” — Sally Tripp, Ireland

Floor Plan Redesign &
Digital Renovation Planning
Get your Layout right
before you renovate
Expert floor plan redesign & renovation planning based on your existing apartment. Optimized for flow, function, and real-life use. From €199, delivered in 3 days
-
25+ years of renovation expertise
-
Architect-drawn, not AI-generated
- Better flow, smarter storage, add a bedroom, modernize kitchen and baths— same m²
See your apartment’s possibilities.
Get a free expert evaluation in 48 hours.
No obligation.
Perfect For:
Buyers planning renovation
– see the potential before you commit
Owners ready to renovate
– get it right before construction starts
Property seekers
– compare what’s truly possible

“The new layout creates a much better flow, eliminates unnecessary dead space, and greatly improves storage, making the house feel more livable and contemporary.”
— Sally Tripp, Ireland
Real Apartments, Real Layout Improvements
Real client projects with layout optimized first. Exra bedrooms, better bathrooms, smarter kitchens, improved flow – same m².
<- swipe ->










Explore more Redesigns →
(full gallery comming soon)
Get a free expert evaluation of your layout in 48 hours. Completely free, no obligations.
“DigiRenovation acted fast, they were very flexible and attentive. The architect had an excellent visual eye and understanding of the property’s architectural historical value. I warmly recommend them!”
-Mary-Ann



“My apartment (65m2) was fully renovated based on DigiRenovations´s plan including relocating of the kitchen and bathroom. The end result was beautiful and very functional. Working with them was easy, professional and uncomplicated. I can highly recommend DigiRenovation!”
-Marina
“We combined two apartments into one. The design process was flexible and took our needs into account perfectly. We received several alternative layouts, from which we chose the one that suited us best. Even during the renovation, we were able to make adjustments. Full marks to Henrik.”
-Pasi & Marika
Professional service that truly respected our wishes. The project was a 27m² studio apartment that originally lacked both a bathroom and a kitchen. The result is a compact and functional home. Highly recommended!
-Jari

“Remote planning with Digirenovation completely transformed our ground floor. The 3D visualizations helped us see our new space before making any changes.”
-Leila & John
“Working with Henrik was fast and straightforward, and the quality of the work was excellent. I warmly recommend him.”
–Janne, Real Estate Agent


Your Floor Plan Has Hidden Potential
Most people accept their layout as fixed. But walls can move, rooms can combine, and flow can improve—you just don’t know what’s possible until an expert shows you.

Old apartments weren’t designed for how we live today
Awkward room transitions, kitchens isolated from living spaces, cramped bathrooms, bedrooms that can’t fit proper furniture, nowhere to work from home, and wasted space instead of smart storage.

Bad Layouts Cost You Twice
First, you live with the frustration daily. Then, when you sell, buyers see the same flaws—and your property value suffers. Every poor layout decision is permanent once construction starts.
Professional space planning backed by real renovation experience
25 Years of Real Projects
Every layout shaped by hundreds of completed renovations. We know what actually works in old apartments.
Scandinavian Design Philosophy
Helsinki-based with nordic design DNA. We prioritize natural light, functional flow, and uncluttered spaces.
Fast & Fully Online
Share your floor plan → receive architect-made layouts in 3 days. Everything managed elegantly through your personal portal.
Unlock your Apartment’s hidden Potential
We start by redesigning your floor plan before construction begins — giving you a clear, improved layout of what’s realistically possible. Once approved, upgrade to complete renovation planning with all major design decisions made upfront, or add detailed kitchen and bathroom planning for spaces that need extra precision.
Floor Plan Redesign

DigiRenovation
Bathroom & Kitchen Design
Get a free expert evaluation of your layout in 48 hours.
Completely free, no obligations.
How it Works
1. Upload Your Floor Plan
Submit your current layout and tell us your wishes. Takes 2 minutes.
2. Free Layout Evaluation (48 hours)
We review your layout and email you what’s possible – honestly.
3. You Decide
Like what you see? Proceed with redesign order, from €199. Not interested? No charge.
4. Delivery (3 days)
If you proceed: payment via bank transfer or PayPal, then we deliver your optimization in 3 working days.
“Great design isn’t about more space
— it’s about better use.”

“The new layout creates a much better flow, eliminates unnecessary dead space, and greatly improves storage, making the house feel more livable and contemporary.” — Sally Tripp, Ireland

“Our 65 m² apartment was fully renovated using Digirenovation’s plan. Relocating the kitchen and bathroom made it both beautiful and highly functional.”
— Marina, Finland

“Buyers kept mentioning the hugh transformation during viewings.” — Helsinki old city, 2014 (72m² Jugend apartment | 4 months, purchase to sale | €127k profit)

“Our 65 m² apartment was fully renovated using Digirenovation’s plan. Relocating the kitchen and bathroom made it both beautiful and highly functional.”
— Marina, Finland
Unlock your Apartment’s hidden Potential /
Our Services and what you'll get
We start by redesigning your floor plan before construction begins — giving you a clear, improved layout of what’s realistically possible. Once approved, upgrade to complete renovation planning (DigiRenovation) with all major design decisions made upfront, or add detailed kitchen and bathroom planning for spaces that need extra precision.
Free Floor Plan Evaluation
(No Payment Required)
Send us your current floor plan via the order form. We review your layout within 48 hours and send you a professional assessment showing:
✓ Whether your layout has optimization potential
✓ Specific improvement opportunities we’ve identified
✓ Visual markups showing where we see clear improvements
✓ Honest recommendation on whether redesign makes sense
Completely free. No payment required. You decide what to do next.
Get a free expert evaluation of your layout in 48 hours.
Completely free, no obligations.
Real world example:
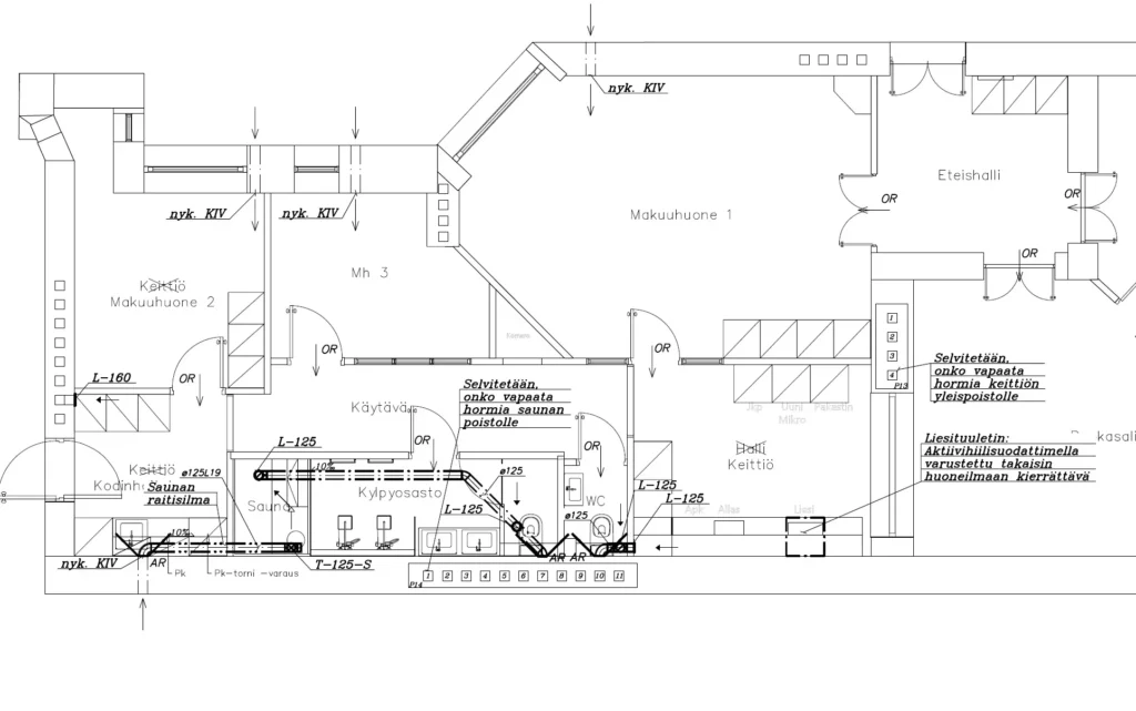
“The reviewed layout has significant potential for big improvements. There is a good opportunity to open up the living area, get an open kitchen and accommodate 3 bedrooms, all in different ends of the apartment. We also see potential to enlarge the second WC to a bathroom. By closing the second entrance to the apartment there is the option to build a separate utility room. All removable walls are non-load-bearing. Suggested changes will increase light, flow and decrease the amount of impractical corridors.”
✓ Kitchen relocating, open concept
✓ Extra bedroom
✓ Better light, flow and less corridors
✓ New utility room
✓ Second bathroom added

Floor Plan Redesign
Complete redesign tailored to your lifestyle
If you love what you see in the free evaluation and want the complete redesign, here’s what’s included. This is the most important step in any renovation — establishing the right layout before investing in detailed planning or construction. Get it right from the start, and everything else falls into place.
Floor Plan Redesign includes:
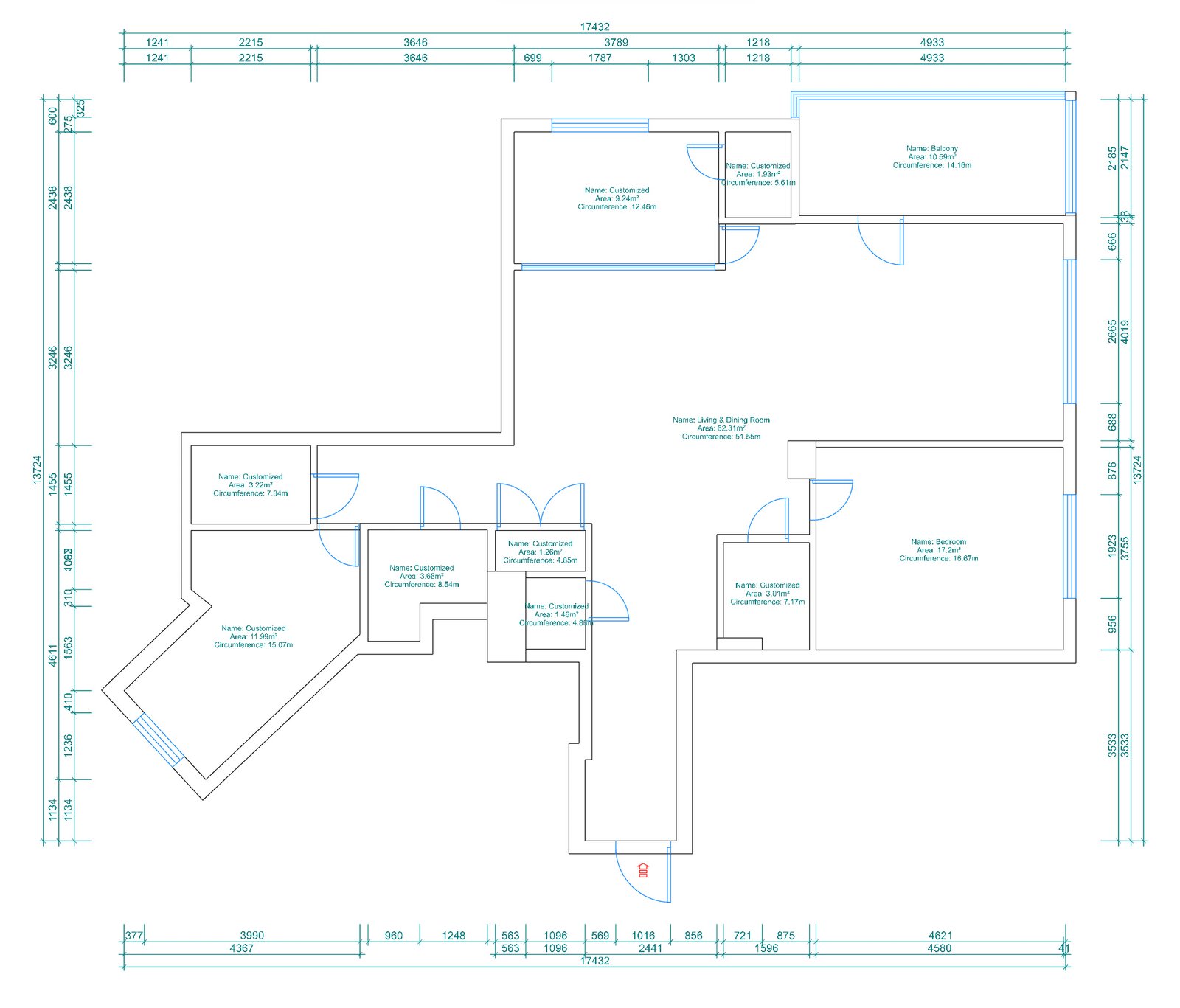
– Your current floor plan professionally redrawn
– New optimized layout with furniture placement (PDF)
– Detailed floor plan drawing with measurements (PDF + DWG/AutoCAD)
– Written analysis explaining each improvement
Pricing based on apartment size:
– Small apartments (0-59 m²): €199
– Medium apartments (60-99 m²): €249
– Large apartments (100+ m²): €299
All prices include VAT.
Delivery timeline:
– 3 working days after payment
What your contractor gets:
Clear layout specifications for accurate quoting and planning. Measurements based on your provided floor plan – contractor verifies on-site before construction or ordering materials.
One revision round included:
– Refinements to the optimized layout based on your feedback
– Development of the proposed layout (not a completely new design)
DigiRenovation
Complete renovation planning
-get clarity before construction begins
DigiRenovation transforms your approved floor plan into a complete planning package with all major design decisions resolved upfront. Get clarity and confidence before contractors and budgets take over.
What’s included in DigiRenovation:
Complete design coordination
– Finalized floor plans (based on your approved redesign)
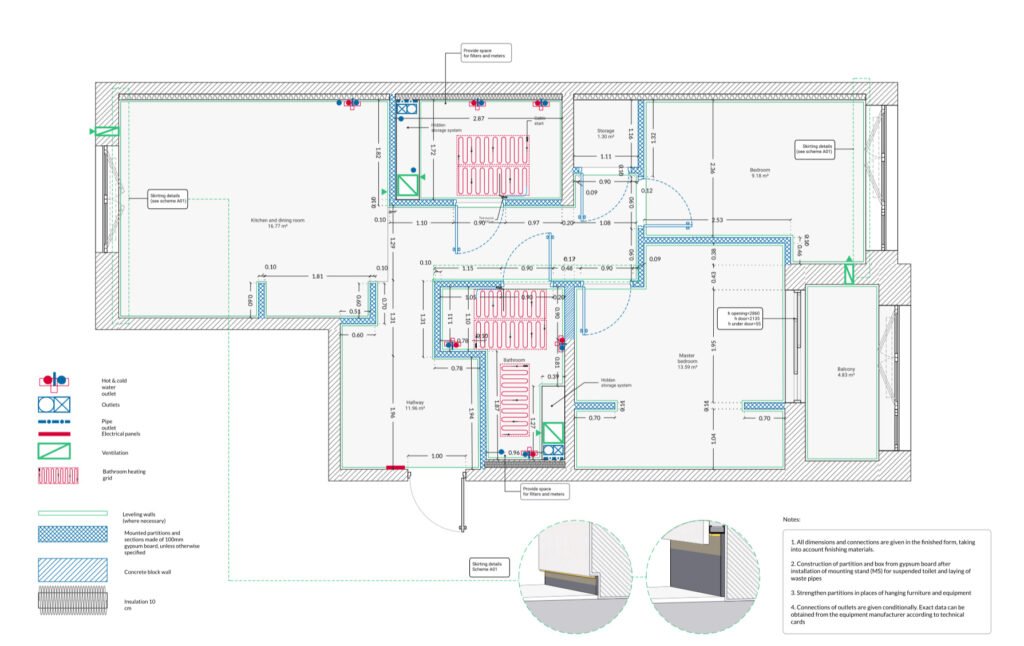
– Demolition & build-up drawings
– Optimized lighting, switches & socket placement
– Suggested electrical layouts for everyday functionality
– Space-efficient storage and furnishing logic
Clear visual understanding
– Coordinated 3D visuals and virtual tours of key spaces
– Helps you, contractors, and suppliers interpret the design the same way
Decision-Ready Documentation
– Room areas, material quantities & layout logic
– Clear drawings to support contractor pricing and planning
– Everything designed as one coordinated system
Important to know
This package delivers design clarity, not local regulatory approval.
Load-bearing structures, HVAC engineering, and final site measurements must always be verified and planned locally according to regulations.
Pricing
– DigiRenovation packages start from €1,990, Incl. VAT (based on apartment size & scope)
This step is ideal if you want:
– fewer surprises during construction
– faster and more accurate contractor quotes
– less stress and fewer decisions on site
Your Personal Project Portal
Every DigiRenovation project includes access to a secure personal project portal, where everything is managed in one place:
– All drawings, visuals and documents
– Centralized communication and feedback
– Automatic notifications when updates are ready
– One shared space for you, your contractor and other project members
No scattered emails, lost files or version confusion — everyone works from the same, up-to-date information.
Bathroom & Kitchen Design
Detailed planning for critical spaces
Premium design for bathrooms and kitchens — the most complex and costly spaces in any renovation. Goes deeper than DigiRenovation with material lists, tile and style comparisons, and virtual walk-through tours so you can experience the space before construction begins. Available separately or as an add-on.
What’s included:
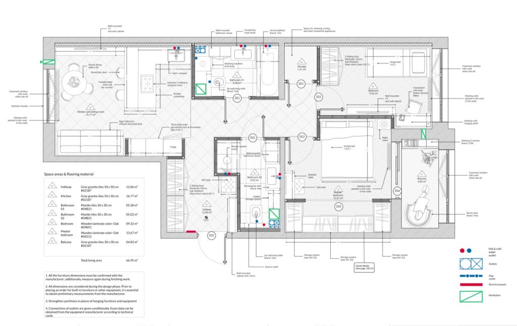
Professional Bathroom Planning
– Optimized layouts with fixtures and storage
– Wall elevations & layout logic
– Material and surface coordination
– Lighting and functional zoning
Professional Kitchen Planning
– Cabinet layout and appliance positioning
– Ergonomic work zones and storage logic
– Elevations and functional detailing
– Coordinated with your final floor plan and electrics
Why this is separate
Bathrooms and kitchens require significantly more detailing, coordination, and precision than general planning. This premium step is for clients who want these spaces fully resolved before ordering or construction.
Pricing
– Bathroom & Kitchen Premium Design from €990 per space. Incl. VAT
Services - what you'll get
We start with floor plan redesign before construction — giving you a clear, improved layout of what’s possible. Then upgrade to complete renovation planning or add detailed kitchen and bathroom design.
Floor Plan Evaluation
(No Payment Required)
Send your current floor plan. We review it within 48 hours and send you:
✓ Whether your layout has potential
✓ Specific improvements we’ve identified
✓ Visual markups showing opportunities
✓ Honest recommendation on next steps
Completely free. You decide what happens next.
Get a free expert evaluation of your layout in 48 hours.
Completely free, no obligations.
Real world example:
“The reviewed layout has significant potential for big improvements. There is a good opportunity to open up the living area, get an open kitchen and accommodate 3 bedrooms, all in different ends of the apartment. We also see potential to enlarge the second WC to a bathroom. By closing the second entrance to the apartment there is the option to build a separate utility room. All removable walls are non-load-bearing. Suggested changes will increase light, flow and decrease the amount of impractical corridors.”
✓ Kitchen relocating, open concept
✓ Extra bedroom
✓ Better light, flow and less corridors
✓ New utility room
✓ Second bathroom added

Floor Plan Redesign
Complete redesign tailored to your lifestyle
If you love the free evaluation, here’s the complete redesign. This is the most important step — get the layout right before investing in detailed planning or construction.
What’s included:
- Current floor plan redrawn professionally
- New optimized layout with furniture (PDF)
- Detailed plan with measurements (PDF + DWG)
- Written analysis of each improvement
Pricing by apartment size:
- Small (0-59 m²): €199
- Medium (60-99 m²): €249
- Large (100+ m²): €299
All prices include VAT. Delivered in 3 working days.
For your contractor:
Clear layout specs for accurate quoting. Measurements based on your floor plan
— contractor verifies on-site before construction.
One revision included:
Refinements to the layout based on your feedback (not a new design).
DigiRenovation
Complete planning package from your approved floor plan
All major design decisions resolved upfront. Get clarity before contractors and budgets take over.
What’s included:
Design coordination
- Finalized floor plans & demolition drawings
- Lighting, switches & socket placement
- Storage and furnishing logic
Visual clarity
- 3D visuals and virtual tours
- Everyone interprets the design the same way
Contractor-ready documentation
- Room areas, material quantities
- Clear drawings for accurate pricing
Important: Delivers design clarity, not regulatory approval. Load-bearing, HVAC, and site measurements must be verified locally.
From €1,990 (incl. VAT, based on size & scope)
Ideal if you want:
- Fewer surprises during construction
- Faster, more accurate quotes
- Less stress and fewer on-site decisions
Your Project Portal
Secure space where everything lives:
- All drawings, visuals, documents
- Centralized communication
- Automatic update notifications
- Shared access for you, contractor, team
No scattered emails or version confusion.
Premium Bathroom & Kitchen Design
The most complex and costly spaces in any renovation — designed with precision before construction begins.
What’s included:
Bathroom planning
- Optimized layout with fixtures & storage
- Wall elevations & material coordination
- Lighting and functional zoning
Kitchen planning
- Cabinet layout & appliance positioning
- Ergonomic work zones & storage logic
- Coordinated with floor plan & electrics
Why separate?
Bathrooms and kitchens need significantly more detailing and precision. For clients who want these spaces fully resolved before ordering.
From €990 per space (incl. VAT)
Available separately or as DigiRenovation add-on.
See what's possible in your apartment
Upload your Floor Plan for a Free Evaluation. We’ll review your current layout within 48 hours and confirm if optimization is possible. You only pay if we find genuine improvements AND you decide to proceed.
Free Floor Plan Evaluation
Free evaluation within 48 hours. You only pay €199 if we find genuine improvements AND you decide to proceed.
* Allowed file formats: JPG, PDF, and PNG. If you receive a “Wrong file format” message, please refresh the page and try again using a floor plan image in one of these three formats.
What Happens Next
1. Free Floor Plan Evaluation (48 hours)
We analyze your floor plan and assess optimization potential.
2. You Receive Our Assessment
We email you one of two outcomes:
✓ “We found opportunities” – we explain what improvements are possible.
You decide if you want the full redesign from €199.
✓ “Already optimized” – We explain honestly why your layout is already well-configured. No charge.
3. Payment & Delivery (If You Proceed)
If you like what you see and want the full redesign, pay via bank transfer or PayPal. We deliver your floor plan redesign in 3 working days.
You’re in control – free assessment first, payment only if you choose to proceed with the full redesign.
“DigiRenovation acted fast, they were very flexible and attentive. The architect had an excellent visual eye and understanding of the property’s architectural historical value. I warmly recommend them!”
-Mary-Ann

“My apartment (65m2) was fully renovated based on DigiRenovations´s plan including relocating of the kitchen and bathroom. The end result was beautiful and very functional. Working with them was easy, professional and uncomplicated. I can highly recommend DigiRenovation!”
-Marina
“We combined two apartments into one. The design process was flexible and took our needs into account perfectly. We received several alternative layouts, from which we chose the one that suited us best. Even during the renovation, we were able to make adjustments. Full marks to Henrik.”
-Pasi & Marika
“Remote planning with Digirenovation completely transformed our ground floor. The 3D visualizations helped us see our new space before making any changes.”
-Leila & John

“Professional service that truly respected our wishes. The project was a 27m² studio apartment that originally lacked both a bathroom and a kitchen. The result is a compact and functional home. Highly recommended!”
-Jari




“Working with Henrik was fast and straightforward, and the quality of the work was excellent. I warmly recommend him.”
–Janne, Real Estate Agent




“DigiRenovation acted fast, they were very flexible and attentive. The architect had an excellent visual eye and understanding of the property’s architectural historical value. I warmly recommend them!”
-Mary-Ann

“Professional service that truly respected our wishes. The project was a 27m² studio apartment that originally lacked both a bathroom and a kitchen. The result is a compact and functional home. Highly recommended!”
-Jari




“My apartment (65m2) was fully renovated based on DigiRenovations´s plan including relocating of the kitchen and bathroom. The end result was beautiful and very functional. Working with them was easy, professional and uncomplicated. I can highly recommend DigiRenovation!”
-Marina
“We combined two apartments into one. The design process was flexible and took our needs into account perfectly. We received several alternative layouts, from which we chose the one that suited us best. Even during the renovation, we were able to make adjustments. Full marks to Henrik.”
-Pasi & Marika
“Remote planning with Digirenovation completely transformed our ground floor. The 3D visualizations helped us see our new space before making any changes.”
-Leila & John

“Working with Henrik was fast and straightforward, and the quality of the work was excellent. I warmly recommend him.”
–Janne, Real Estate Agent




Common Questions
How much does it cost?
The evaluation is completely free. If you want to proceed with the Floor Plan Redesign, pricing is based on apartment size:
Small apartments (0-59 m²): €199
Typical: Studios, compact 1-bedroom apartmentsMedium apartments (60-99 m²): €249
Typical: Standard 2-bedroom, larger 1-bedroom apartmentsLarge apartments (100+ m²): €299
Typical: 3+ bedroom, spacious layoutsAll prices include VAT, complete floor plan redesign with detailed measurements, and 3-day delivery.
What information do I need to provide?
Your current floor plan (photo, PDF, or scan) — the more accurate, the better. Ideally include at least one measurement or the approximate total area. It also helps if you share your improvement goals, special functional needs, family size, and lifestyle preferences.
What do I receive?
The Free Evaluation includes:
- A written review of the current layout and suggestions on possible improvements
- A mockup image of your current layout showing spotted problems and improvement potential
The Floor Plan Redesign includes:- Your current floor plan professionally redrawn
- One new optimized floor plan with furniture placement (PDF)
- One floor plan with measurements (PDF + DWG/AutoCAD)
- A written analysis explaining each improvement
- One revision round included
What format do I receive the files in?
You receive PDF files for viewing and DWG/AutoCAD files for contractors to work with.
What's not included in the Floor Plan Redesign?
Structural engineering, HVAC planning, and permit drawings are not included and must be arranged locally. For 3D visualizations and detailed interior planning, see our DigiRenovation service.
How long does it take?
48 hours to review your plan + 3 working days to deliver optimization after payment. About 1 week total.
What if you can't improve my layout?
We review first, then request payment only if we find genuine opportunities AND you decide to proceed.
No improvement possible = no charge.What if I don't like the redesign?
One revision round is included to refine the layout based on your feedback. We’ll develop and improve the proposed design together.
Can I use this with my contractor?
Yes. Our floor plans show your optimized layout with measurements and specifications.
Your contractor can use them to:
– Understand exactly what layout you want
– Provide accurate quotes for the work
– Plan the renovation scopeImportant: Our plans are based on your provided floor plan, not site measurements. Your contractor should verify all dimensions on-site before construction begins or ordering materials/furniture.
For complex projects, contractors may request additional detailed drawings (elevations, technical details) which you can commission separately or they can produce.
Many customers also share our plans with architects (if needed for permits or structural work) to show the exact layout they want.
Is this enough for my contractor to start work?
The redesign provides layout and measurements for planning and quoting. Your contractor must verify measurements on-site and handle structural/regulatory requirements.
How is this different from a traditional architect?
We provide complete architectural layout design delivered entirely online. You receive decision-ready floor plans with detailed measurements, optimized for flow, functionality, and value.
Traditional architects typically require weeks of meetings, site visits, and much higher fees. We deliver the same professional quality in 3 days, entirely online.
What’s included: Layout optimization, space planning, decision-ready documentation.
What we don’t handle: Building permits (handled by local authorities) and on-site construction supervision (handled by your contractor).
For complete renovation planning – including 3D visualization, interior design, and technical specifications – explore our full DigiRenovation services.
Do I own the drawings? Can I use them freely?
Yes, all drawings are yours to use with contractors, suppliers, or future planning.
What if I need more services?
After your floor plan is redesigned you can add bathroom and/or kitchen desing and the full DigiRenovation package.
Can I upgrade to DigiRenovation later?
Yes at any time! Your redesign becomes the foundation for DigiRenovation.
Meet the team

Henrik Wiik
CEO, Chief Designer
Master of Science in Engineering

Yvonne Westerlund
Co-Founder
Interior Design

Ahmad Ali
CAD Manager, Architectural Planning
Master of Science in Engineering
About DigiRenovation
We help apartment owners unlock their space’s potential before renovation begins. Founded by Henrik, an architect specializing in residential layout optimization, our service bridges the gap between “I want to renovate” and “I know exactly what to build.”
We’ve seen too many renovations start with construction instead of planning — leading to costly mistakes, missed opportunities, and layouts that don’t truly fit how people live. Our process puts design first: redesign your layout, visualize the possibilities, then build with confidence.
Based in Helsinki, Finland. Serving clients across Europe.
Founder's Note
The truth is, every apartment benefits from thoughtful layout planning—but it’s especially critical for smaller spaces and city apartments, were you pay a premium price for every squere meter.
We’ve built our expertise on the toughest challenges: cramped old apartment bathrooms that can’t be enlarged, awkward hallways, undersized kitchens. For every home size, there’s an optimal balance of rooms, bathrooms, storage, and living space. We consider all these factors—plus the practical reality of how furniture actually fits and how people move through spaces.
While 2D floor plans are essential, we also work in real-time 3D during planning. This helps us see the complete picture and ensure every decision is both functional and aesthetically right.
I’ve been drawing floor plans since childhood, yet 50 years later, every new project still excites me.
This isn’t just work—it’s what I love to do.
-Henrik
































































